Desain kost 2 lantai minimalis modern – Apakah Anda sedang mencari inspirasi untuk mendesain kos-kosan yang tidak hanya nyaman tapi juga efisien dari segi ruang dan biaya? Desain kost 2 lantai minimalis modern bisa menjadi solusi sempurna.
Di era yang serba praktis ini, memilih gaya minimalis modern dapat menarik lebih banyak penyewa, terutama kalangan milenial yang cenderung menyukai konsep hidup sederhana tapi fungsional. Dalam tulisan ini, kita akan menggali lebih dalam mengenai berbagai ide desain yang dapat Anda terapkan untuk membuat kost Anda tidak hanya nyaman tapi juga menguntungkan.
Pengenalan tentang Ide Desain Kost 2 Lantai Minimalis Modern

Desain kost 2 lantai minimalis modern merupakan sebuah konsep yang menarik banyak perhatian bagi investasi properti saat ini. Trend ini tidak hanya menawarkan keindahan arsitektural, tetapi juga fungsionalitas yang maksimal dalam penggunaan ruang dan biaya operasional.
Dengan meningkatnya kebutuhan akan tempat tinggal yang nyaman namun efisien, memiliki kost dengan desain ini bisa menjadi pilihan yang sangat menguntungkan.
Keuntungan memiliki kost dengan desain minimalis modern
Memilih untuk membangun kost dengan desain minimalis modern membawa berbagai keuntungan.
Pertama, desain yang simpel dan elegan seringkali lebih menarik bagi calon penyewa, terutama generasi muda yang menghargai gaya hidup praktis dan estetika modern.
Kedua, konsep minimalis mengurangi biaya pembangunan karena hanya memerlukan bahan yang lebih sedikit dan desain yang tidak kompleks.
Ketiga, dengan desain yang cerdas, penggunaan energi bisa lebih efisien, mengurangi biaya utility bulanan dan meningkatkan keberlanjutan. Keempat, manajemen dan pemeliharaan gedung jadi lebih mudah karena elemen desain yang minimalis cenderung lebih mudah dibersihkan dan dijaga.
Kenapa memilih desain 2 lantai untuk properti kost?
Desain 2 lantai menawarkan berbagai keuntungan, terutama dalam konteks mengoptimalkan lahan yang terbatas. Dengan dua lantai, Anda dapat menampung lebih banyak kamar dalam luas tanah yang sama dibandingkan dengan bangunan satu lantai, meningkatkan potensi penghasilan dari investasi properti.
Penambahan lantai juga memungkinkan pengsegregasian fungsi ruang yang lebih baik, dimana area umum dan pribadi bisa dengan mudah dipisahkan secara vertikal, menambah kualitas penghunian tanpa mengurangi privasi. Selain itu, desain vertikal ini juga menawarkan pemandangan yang lebih baik bagi penghuni, sebuah nilai tambah yang bisa menarik minat penyewa.
Simak Juga : Denah rumah 7×6 3 kamar tidur
Faktor-faktor Penting dalam Merancang Kost

Pemilihan Lokasi yang Strategis
Lokasi menjadi salah satu faktor terpenting dalam kesuksesan properti kost. Lokasi yang ideal adalah yang dekat dengan fasilitas umum seperti universitas, tempat kerja, dan pusat perbelanjaan. Lokasi yang strategis tidak hanya mempengaruhi tingkat hunian, tetapi juga dapat menentukan nilai sewa yang bisa ditawarkan.
Selain itu, aksesibilitas dan keamanan area sekitar harus dipertimbangkan untuk menjamin kenyamanan dan keamanan penghuni.
Desain Ruang yang Efisien
Dalam merancang kost 2 lantai minimalis modern, setiap meter persegi harus dimanfaatkan dengan maksimal. Hal ini berarti, merancang ruang-ruang yang multifungsi dan bisa menyesuaikan dengan kebutuhan penghuni.
Misalnya, meja belajar yang juga bisa fungsi sebagai meja rias atau tempat tidur yang dilengkapi dengan storage di bawahnya. Selain itu, penggunaan partisi geser bisa menjadi pilihan untuk membagi ruangan tanpa memakan tempat secara permanen, memberikan fleksibilitas lebih dalam penggunaan ruang.
Baca Juga : Rumah minimalis dua lantai modern
Kenyamanan dan Privasi Penghuni

Kenyamanan dan privasi adalah dua aspek yang sangat penting dalam desain kost. Penting untuk membuat desain yang memungkinkan cahaya dan sirkulasi udara yang baik mengalir ke setiap ruangan, menjaga ruangan tetap segar dan terang.
Penyediaan fasilitas seperti kamar mandi dalam dan soundproofing antar kamar juga penting untuk menjaga privasi dan kenyamanan tiap penghuni, membantu mereka merasa lebih di rumah.
Fasilitas Penunjang yang Memadai
Fasilitas penunjang seperti WiFi cepat, laundry, dapur bersama, dan area bersantai merupakan nilai tambah yang bisa meningkatkan daya tarik kost. Selain itu, keamanan juga tidak kalah penting, dengan pemasangan CCTV dan sistem keamanan 24 jam untuk memastikan keamanan penghuni.
Fasilitas ini tidak hanya membuat kost lebih menarik, tapi juga memudahkan penghuni dalam melakukan aktivitas sehari-hari mereka.
Perizinan dan Regulasi
Sebelum membangun kost, penting untuk memahami dan mengikuti perizinan dan regulasi yang berlaku. Proses ini termasuk mengajukan izin mendirikan bangunan (IMB) dan memastikan bahwa desain bangunan sesuai dengan regulasi setempat. Mengabaikan aspek ini bisa berakibat pada penutupan operasional atau denda yang bisa mengganggu kelangsungan bisnis.
Baca Juga : Desain rumah minimalis modern 8×15
Inspirasi desain rumah kost minimalis

Membangun rumah kost dengan desain minimalis modern merupakan pilihan cerdas bagi pemilik properti yang ingin mengoptimalkan lahan tanpa mengorbankan estetika dan kenyamanan penghuni. Desain kost minimalis mengutamakan fungsi setiap ruang dengan tetap memperhatikan elemen modern yang simpel namun elegan.
Konsep minimalis modern tidak hanya menciptakan tampilan yang bersih dan rapi, tetapi juga meningkatkan efisiensi penggunaan ruang. Ini sangat penting terutama untuk bangunan kost yang bertujuan untuk menyediakan ruang tinggal yang praktis namun nyaman.
Tata letak desain rumah kost minimalis modern
Dalam mendesain tata letak rumah kost minimalis modern, fokus utama adalah menciptakan privasi dan independensi untuk setiap penghuni. Hal ini bisa diwujudkan dengan menyusun kamar-kamar kost yang berorientasi ke arah yang berbeda, sehingga mengurangi kemungkinan penghuni saling terganggu.
Penting juga untuk memisahkan area umum seperti dapur, ruang makan, dan ruang tamu dari kamar-kamar pribadi untuk memaksimalkan ruang bersama tanpa mengganggu privasi. Pencahayaan alami harus dimaksimalkan di semua area, menggunakan jendela besar atau skylight yang dapat mengurangi penggunaan energi selama siang hari.
Desain kost minimalis 1 lantai

Desain kost minimalis 1 lantai biasanya lebih cocok untuk lahan yang lebih luas, di mana semua kamar dan fasilitas bisa diakses tanpa perlu ada tangga. Ini ideal untuk target penyewa seperti keluarga kecil atau lansia yang mengutamakan kemudahan akses.
Desain ini memungkinkan semua kamar memiliki akses langsung ke halaman luar yang bisa dijadikan ruang tamu terbuka atau area relaksasi. Pemanfaatan partisi geser atau furnitur multifungsi dapat membantu memisahkan ruang-ruang tanpa membuatnya terasa sempit atau terbatas.
Baca Juga : Desain rumah 6 x 10 minimalis
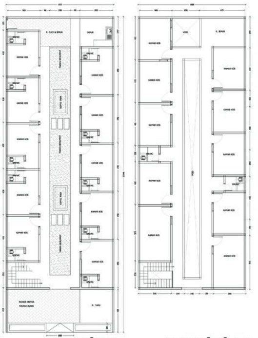
Desain kost minimalis 2 lantai

Desain kost 2 lantai minimalis modern sangat efektif untuk memaksimalkan ruang pada lahan yang terbatas. Lantai pertama bisa dijadikan area umum dan layanan, sementara lantai dua diisi dengan kamar-kamar pribadi yang disertai kamar mandi dalam.

Pengaturan ini tidak hanya mengoptimalkan ruang, tetapi juga menambah privasi dan keamanan untuk penghuni. Gunakan tangga yang ramping dan terintegrasi dengan cerdas ke dalam tata ruang untuk menghemat ruang tetapi tetap fungsional. Penggunaan warna netral dan garis bersih dalam dekorasi akan membantu membuat ruangan terasa lebih luas dan terang.
Baca Juga : Desain rumah minimalis modern 1 lantai tampak depan
Perencanaan Anggaran Desain Kost 2 Lantai Minimalis Modern

Membangun sebuah kost dengan desain minimalis modern dua lantai memerlukan perencanaan anggaran yang matang agar dapat menghasilkan properti yang tidak hanya estetis tetapi juga ekonomis. Dengan merencanakan anggaran secara detail, Anda bisa menghindari pembengkakan biaya yang tidak perlu dan memastikan bahwa investasi Anda berjalan sesuai dengan harapan.
Estimasi biaya pembangunan kost 2 lantai
Pertama-tama, Anda perlu memahami komponen biaya utama dalam pembangunan rumah kost, meliputi biaya tanah, biaya desain, biaya material bangunan, biaya tenaga kerja, dan biaya perizinan. Penting untuk melakukan riset pasar untuk mendapatkan estimasi harga yang realistis untuk setiap komponen.
Misalnya, perluasan atas biaya material bangunan bisa berbeda-beda tergantung pada lokasi dan kualitas bahan yang dipilih. Sebagai contoh, menggunakan material prefabrikasi atau modular bisa menjadi alternatif yang lebih terjangkau dan lebih cepat dalam proses pembangunan.
Strategi menghemat biaya dalam pembangunan
Ada beberapa cara untuk mengoptimalkan anggaran tanpa mengorbankan kualitas. Pertama, gunakan material lokal yang lebih murah tapi tetap berkualitas. Kedua, desain yang efisien yang mengurangi pemborosan material dan biaya tenaga kerja.
Hal ini bisa termasuk desain modular yang memungkinkan sebagian bangunan diproduksi di pabrik dan dirakit di lokasi. Ketiga, pertimbangkan melakukan beberapa pekerjaan sendiri atau dengan bantuan kerabat jika memungkinkan, yang mungkin bisa mengurangi biaya tenaga kerja.
Baca Juga : Ruang tamu rumah minimalis modern
Manfaat jangka panjang dari investasi pada desain yang efisien
Menginvestasikan di desain kost yang efisien tidak hanya menghemat biaya awal tetapi juga memberikan manfaat jangka panjang. Properti yang dirancang dengan baik akan menarik lebih banyak penyewa, memungkinkan Anda untuk mempertahankan tingkat hunian yang lebih tinggi dan meningkatkan aliran pendapatan.
Selain itu, bangunan yang efisien dalam hal energi akan mengurangi biaya operasional sehari-hari, baik untuk Anda maupun untuk penghuni. Ini menciptakan situasi menang-menang di mana lingkungan juga diuntungkan dari penggunaan sumber daya yang lebih sedikit.

Merancang kost dengan dua lantai bergaya minimalis modern tidak hanya menghemat ruang, tetapi juga meningkatkan nilai investasi properti Anda. Desain yang efisien dan estetis, mulai dari penggunaan warna netral hingga pemilihan furnitur yang fungsional, menciptakan lingkungan yang nyaman dan menarik bagi penyewa.
Dengan menerapkan prinsip desain minimalis, Anda bisa memaksimalkan ruang tanpa mengorbankan gaya atau kenyamanan. Jadi, tidak heran jika desain jenis ini menjadi pilihan populer di kalangan pemilik properti. Selamat mencoba dan berinovasi dengan desain kost modern minimalis Anda!
Harga & Biaya Jasa Arsitek Rumah Bangunan
Ingin mewujudkan rumah impian Anda? Nikmati promo diskon 50% dari kami. Promo ini akan berakhir pada

Perusahaan jasa arsitek rumah Dinasti Arsitek Studio, Kami melayani jasa desain rumah, jasa desain arsitek rumah dan bangunan, Jasa Desain Ruko serta jasa desain gedung, hotel dan apartemen.