Apakah Anda sedang mencari inspirasi denah rumah 6×9 dengan garasi yang tepat untuk lahan terbatas namun tetap fungsional? Dalam era modern ini, kebutuhan akan hunian yang nyaman dan praktis semakin meningkat. Banyak orang ingin memiliki rumah dengan ukuran tidak terlalu besar tetapi tetap mampu menampung berbagai kebutuhan, termasuk area parkir untuk kendaraan.
Ukuran 6×9 meter sering menjadi pilihan bagi keluarga kecil hingga menengah, terutama bagi mereka yang memiliki lahan terbatas di perkotaan. Artikel ini akan membahas secara mendalam tentang bagaimana menyusun denah rumah 6×9 dengan garasi yang ideal, lengkap dengan beragam tips, inspirasi, serta pilihan desain yang menarik.
Pada dasarnya, rumah dengan ukuran 6×9 meter dapat diatur sedemikian rupa agar tetap nyaman ditinggali. Kuncinya terletak pada pemaksimalan ruang dan perencanaan tata letak ruangan yang efektif. Tak hanya itu, memiliki garasi menjadi nilai tambah karena selain untuk parkir kendaraan, area ini juga dapat dimanfaatkan sebagai gudang penyimpanan perkakas atau barang-barang lain yang tidak digunakan setiap hari.
Melalui artikel ini, Anda tidak hanya akan menemukan ide denah rumah 6×9 dengan garasi, tetapi juga berbagai alternatif desain menarik seperti denah rumah 6×9 2 lantai, model rumah 6×9 tampak depan, hingga konsep rumah minimalis 6×9 terbaru yang bisa disesuaikan dengan preferensi dan kebutuhan Anda.
Mengapa Memilih Denah Rumah 6×9 dengan Garasi?

Sebelum membahas lebih jauh mengenai detail desain dan contoh denah rumah 6×9 dengan garasi, mari kita pahami dulu mengapa ukuran 6×9 banyak diminati. Ukuran 6×9 meter tergolong cukup compact untuk keluarga beranggotakan 3–5 orang.
Dengan perencanaan ruangan yang cerdas, Anda dapat memiliki ruang tamu, ruang keluarga, kamar tidur, dapur, kamar mandi, bahkan area terbuka kecil atau taman belakang. Ketika Anda menambahkan garasi, maka keamanan kendaraan lebih terjamin, menghindari paparan cuaca ekstrem, serta menambah kenyamanan saat Anda ingin memeriksa mesin mobil atau motor di dalam rumah.
Selain itu, rumah dengan ukuran 6×9 meter memiliki nilai investasi yang cukup tinggi, terutama di area perkotaan. Lahan sempit menjadi kendala utama di kota besar, sehingga desain rumah yang tepat dapat meningkatkan nilai jual atau nilai sewa di masa mendatang.
Dengan demikian, mempertimbangkan denah rumah 6×9 dengan garasi merupakan langkah bijak jika Anda menginginkan hunian ringkas namun tetap mengakomodasi kebutuhan modern.
Simak Juga : Griya unik minimalis modern
Keunggulan Denah Rumah 6×9 dengan Garasi

Mungkin Anda bertanya, apa saja keuntungan yang bisa didapatkan dari denah rumah 6×9 dengan garasi? Berikut beberapa poin penting yang perlu Anda ketahui:
-
Pemanfaatan Ruang yang Maksimal
Dengan luas bangunan terbatas, Anda dituntut untuk kreatif dalam menata ruang. Hal ini justru menjadi keuntungan karena dapat menghindari pemborosan ruang. Setiap sudut rumah akan dimanfaatkan semaksimal mungkin dan direncanakan secara matang. -
Efisiensi Biaya Pembangunan
Memiliki lahan yang tidak terlalu luas otomatis menghemat biaya pembangunan. Anda dapat mengalokasikan anggaran untuk material berkualitas, desain interior menarik, serta pembuatan garasi yang aman dan nyaman. -
Perawatan Lebih Mudah
Rumah yang relatif mungil lebih mudah dibersihkan dan dirawat. Anda tidak perlu menghabiskan banyak waktu serta biaya untuk perawatan. Garasi juga lebih mudah ditata karena areanya tidak terlalu luas, memudahkan Anda dalam memarkir kendaraan dan menyimpan barang-barang. -
Tampilan Eksterior yang Menarik
Kendati ukurannya tidak besar, Anda tetap dapat menghadirkan model rumah 6×9 tampak depan yang menarik. Kreativitas dalam pemilihan fasad, warna cat, dan pemilihan bahan bangunan yang tepat akan membuat rumah Anda terlihat modern serta elegan. -
Fleksibel untuk Berbagai Kebutuhan
Ukuran 6×9 meter dengan tambahan garasi masih memberikan ruang fleksibel untuk menambah ruangan. Jika sewaktu-waktu keluarga Anda bertambah, Anda dapat memanfaatkan lantai dua atau merombak tata letak bagian dalam tanpa perlu membongkar total struktur rumah.
Keunggulan-keunggulan ini menjadikan denah rumah 6×9 dengan garasi kian dicari oleh banyak orang, terutama mereka yang ingin memiliki hunian fungsional di atas lahan terbatas.
Simak Juga : Garasi samping rumah sederhana
Elemen Penting dalam Denah Rumah 6×9 dengan Garasi

Sebelum Anda mulai merancang denah rumah 6×9 dengan garasi, ada beberapa elemen kunci yang perlu diperhatikan, yaitu:
-
Area Garasi
Pastikan Anda memperhitungkan luas dan tinggi garasi secara tepat. Sesuaikan pula dengan jenis kendaraan yang Anda miliki. Jika Anda punya mobil dan motor sekaligus, atur agar keduanya tetap dapat terparkir nyaman tanpa mengorbankan ruang sirkulasi di dalam garasi. -
Ruang Tamu dan Ruang Keluarga
Rumah minimalis tidak selalu harus sempit dan terasa sesak. Pengaturan ruang tamu dan ruang keluarga secara open plan (tanpa banyak sekat) bisa membantu memberikan kesan lega. Di beberapa desain, ruang tamu bisa diintegrasikan dengan garasi melalui pintu penghubung yang memudahkan akses. -
Jumlah Kamar Tidur
Umumnya, untuk ukuran 6×9, Anda bisa menghadirkan dua kamar tidur yang nyaman. Bagi keluarga yang sudah memiliki anak lebih dari satu, mungkin memerlukan desain Desain rumah 6×9 3 Kamar atau memanfaatkan konsep 2 lantai untuk menambah kamar tidur. -
Dapur dan Ruang Makan
Penempatan dapur biasanya berada di bagian belakang atau berdekatan dengan ruang makan. Sesuaikan letak jendela dan ventilasi agar sirkulasi udara di dapur tetap segar. Anda juga dapat memanfaatkan kitchen set minimalis dengan ruang penyimpanan yang cukup. -
Kamar Mandi
Pastikan kamar mandi memiliki akses mudah dari kamar tidur dan ruang keluarga. Hindari lokasi kamar mandi yang terlalu berdekatan dengan area dapur untuk alasan higienis. -
Pencahayaan Alami dan Ventilasi
Rumah mungil akan terasa lebih nyaman jika mendapatkan cahaya matahari yang cukup dan sirkulasi udara yang lancar. Manfaatkan jendela besar, ventilasi silang, atau skylight agar rumah tidak pengap. -
Area Terbuka atau Taman Kecil
Meskipun lahan terbatas, usahakan untuk menyediakan sedikit ruang terbuka hijau. Selain menambah kesan asri, taman kecil juga membantu menjaga sirkulasi udara sekaligus mempercantik tampilan rumah.
Dengan mempertimbangkan elemen-elemen di atas, Anda dapat merancang denah rumah 6×9 dengan garasi yang efisien dan fungsional. Jangan lupa juga menyesuaikan desain dengan kebutuhan anggota keluarga, termasuk keperluan untuk privasi atau aktivitas tertentu.
Simak Juga : Desain rumah 6×12 2 lantai 4 kamar tidur
Inspirasi Denah Rumah 6×9 dengan Garasi Berdasarkan Jumlah Lantai
Memilih apakah rumah akan dibangun satu lantai atau dua lantai adalah pertimbangan penting. Berikut beberapa inspirasi yang bisa Anda pertimbangkan.
Denah Rumah 6×9 1 Lantai dengan Garasi

Jika Anda lebih suka hunian satu lantai, maka perlu perencanaan matang agar setiap ruangan terakomodasi dengan baik. Anda dapat menata ruang tamu di bagian depan, yang langsung terhubung ke garasi. Ruang keluarga dan dapur ditempatkan di bagian tengah atau belakang rumah. Jika memungkinkan, sisakan sedikit lahan di bagian belakang untuk taman minimalis.
- Kamar Tidur Utama: Biasanya terletak di bagian tengah atau belakang untuk mendapatkan ketenangan.
- Kamar Tidur Tambahan: Cocok untuk anak atau tamu, bisa diletakkan bersebelahan dengan kamar tidur utama atau dekat ruang keluarga.
- Garasi: Buatlah garasi setara dengan lebar rumah bila Anda ingin menyimpan lebih dari satu kendaraan. Pastikan akses dari garasi ke dalam rumah tidak mengganggu kenyamanan ruang tamu.
Dalam konsep satu lantai ini, rumah 6×9 tampak depan bisa dikreasikan dengan fasad minimalis. Garasi dapat diberi pintu besi atau rolling door agar hemat tempat. Anda juga dapat menambahkan detail batu alam atau aksen kayu pada bagian depan rumah untuk menambah nuansa modern.
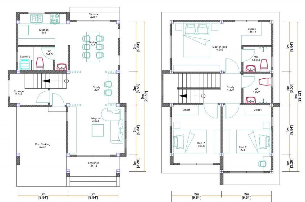
Denah Rumah 6×9 2 Lantai dengan Garasi

Apabila Anda membutuhkan ruang lebih banyak, terutama dalam hal jumlah kamar, maka opsi denah rumah 6×9 2 lantai bisa menjadi solusi ideal. Lantai satu bisa difokuskan untuk area publik seperti ruang tamu, ruang keluarga, dapur, serta garasi. Sedangkan lantai dua dapat menampung kamar-kamar tidur tambahan dan ruang kerja jika diperlukan.
- Lantai Satu:
- Garasi terletak di sisi depan atau samping.
- Ruang tamu yang menyatu dengan ruang keluarga untuk kesan lapang.
- Dapur dan ruang makan di bagian belakang.
- Kamar mandi tamu berdekatan dengan ruang keluarga atau di bawah tangga (jika memungkinkan).
- Lantai Dua:
- Kamar tidur utama dengan kamar mandi dalam.
- Satu atau dua kamar tidur tambahan untuk anak.
- Balkon kecil untuk ruang bersantai atau menjemur pakaian.
Dengan menerapkan desain rumah ukuran 6×9 2 Kamar di lantai atas atau desain rumah 6×9 3 Kamar (2 kamar di atas, 1 kamar di bawah), Anda dapat memenuhi kebutuhan keluarga besar. Garasi di lantai bawah tetap menjadi area privasi kendaraan dan memudahkan Anda saat pulang atau pergi.
Simak Juga : Denah rumah type 36 3 kamar
Ragam Konsep Eksterior pada Denah Rumah 6×9 dengan Garasi
Model Rumah 6×9 Tampak Depan Bergaya Minimalis Modern

Gaya minimalis modern kian populer saat ini. Ciri khasnya adalah penggunaan bentuk geometris sederhana, warna netral, dan minim dekorasi berlebihan. Anda bisa menerapkan fasad dengan kombinasi warna putih, abu-abu, atau aksen kayu.
Untuk menambah kesan mewah, gunakan panel kaca besar di bagian depan. Selain membuat model rumah 6×9 tampak depan lebih menarik, kaca besar juga mendatangkan cahaya alami ke dalam rumah.
Desain Rumah Minimalis 6×9 Tampak Depan dengan Aksen Tradisional
Jika Anda menyukai sentuhan tradisional, padukan desain minimalis dengan elemen kayu atau batu alam pada bagian fasad. Misalnya, menggunakan pintu utama berbahan kayu jati dengan ukiran sederhana, sementara area garasi difinishing menggunakan material ekspos seperti batu alam. Konsep ini memberikan kesan hangat dan natural pada hunian Anda.
Simak Juga : Desain rumah 8×15 3 kamar
Rumah Minimalis 6×9 Terbaru dengan Konsep Skandinavia

Konsep Skandinavia menekankan kesederhanaan, fungsionalitas, dan kehangatan ruang. Aplikasikan warna-warna lembut seperti putih tulang, krem, atau abu terang pada seluruh bagian eksterior.
Garasi dapat didesain dengan pintu kayu horizontal, dan area depan rumah dilengkapi jendela berukuran cukup besar untuk memaksimalkan pencahayaan alami. Dengan demikian, Anda akan mendapatkan rumah minimalis 6×9 terbaru yang tidak hanya modern, tapi juga nyaman bagi seluruh anggota keluarga.
Denah Rumah 6×9 2 Lantai untuk Kebutuhan Ruang Lebih
Bagi Anda yang memiliki keluarga besar atau sering menerima tamu, denah rumah 6×9 2 lantai adalah pilihan tepat. Anda bisa memisahkan area publik dan privat dengan lebih jelas. Misalnya, lantai satu untuk tamu dan keluarga, sedangkan lantai dua untuk kamar tidur dan area santai.
Dengan memanfaatkan 2 lantai, Anda juga dapat memiliki Desain rumah 6×9 memanjang, di mana lantai atas dapat dibuat memanjang ke bagian belakang untuk memaksimalkan lahan.
Model Rumah 6×9 Tampak Depan yang Menarik Perhatian
Bagian fasad memiliki peran penting dalam menciptakan kesan pertama. Untuk model rumah 6×9 tampak depan, perhatikan proporsi antara pintu, jendela, dan area garasi. Pastikan garasi tidak mendominasi keseluruhan tampak depan, sehingga eksterior rumah Anda tetap terlihat menarik. Anda bisa menambahkan kisi-kisi kayu atau balkon mungil untuk menambah dimensi visual.
Simak Juga : Denah rumah 9×7 3 kamar
Rumah 6×9 Tampak Depan dengan Sentuhan Tradisional

Jika Anda menyukai nuansa tradisional, kombinasikan dinding dengan batu alam atau bata ekspos. Pilih warna cat dinding yang serasi agar kesan natural semakin kuat. Jangan lupa sesuaikan juga desain garasi dengan konsep tradisional yang dipilih, misalnya menggunakan pintu garasi beraksen kayu. Dengan begitu, rumah 6×9 tampak depan akan tampil selaras dan harmonis.
Sketsa Rumah 6×9 untuk Memudahkan Perencanaan
Sebelum proses pembangunan, Anda perlu membuat sketsa rumah 6×9. Sketsa ini berfungsi sebagai gambaran awal lokasi penempatan setiap ruangan, termasuk garasi. Anda juga bisa menambahkan detail seperti posisi pintu, jendela, tangga (jika 2 lantai), serta area taman. Semakin detail sketsa yang Anda buat, semakin mudah pula Anda mengawasi proses pembangunan.
Desain Rumah Ukuran 6×9 2 Kamar Bagi Keluarga Kecil
Untuk keluarga kecil dengan satu atau dua anak, desain rumah ukuran 6×9 2 Kamar sudah sangat memadai. Anda bisa menempatkan kamar tidur utama di bagian depan, sedangkan kamar tidur anak di bagian tengah atau belakang.
Garasi berada di sisi depan, menyatu dengan pintu utama. Dengan sedikit penyesuaian tata letak, Anda dapat tetap memiliki ruang tamu, dapur, dan ruang keluarga yang nyaman.
Simak Juga : Denah rumah minimalis 4 kamar
Desain Rumah 6×9 Memanjang agar Terlihat Luas

Terkadang, lahan yang Anda miliki berbentuk memanjang ke belakang. Jangan khawatir, Anda masih bisa menerapkan desain rumah 6×9 memanjang. Kuncinya adalah memanfaatkan panjang lahan untuk membagi ruangan secara linear.
Letakkan garasi dan ruang tamu di bagian paling depan, diikuti oleh dapur dan ruang makan, lalu diakhiri dengan kamar tidur atau taman di bagian belakang. Pastikan sistem pencahayaan dan sirkulasi udara diatur sedemikian rupa agar udara dan cahaya bisa masuk ke seluruh ruangan.
Desain Rumah 6×9 3 Kamar bagi Keluarga Menengah
Jika anggota keluarga Anda lebih banyak, desain rumah 6×9 3 Kamar dapat menjadi solusi. Anda mungkin perlu memanfaatkan 2 lantai agar setiap anggota keluarga mendapatkan privasi. S
atu kamar di lantai satu bisa dialihfungsikan menjadi kamar tamu atau kamar orang tua. Sementara itu, dua kamar lain di lantai dua bisa dipakai oleh anak-anak. Pembagian seperti ini menjadikan denah rumah Anda lebih fleksibel.
Gambar Rumah Sederhana Ukuran 6×9 di Kampung yang Nyaman
Bukan hanya di perkotaan, gambar rumah sederhana ukuran 6×9 di kampung juga cukup diminati. Meski sederhana, Anda tetap bisa menambahkan garasi, terutama jika Anda memerlukan parkir untuk mobil atau motor.
Sesuaikan bentuk atap dengan kondisi iklim di daerah kampung Anda. Umumnya, atap pelana atau limasan dipilih agar air hujan lebih mudah mengalir dan meminimalkan risiko kebocoran.
Simak Juga : Rumah tingkat sederhana tapi mewah
Desain Rumah Minimalis 6×9 Tampak Depan dengan Garasi Luas

Bagi Anda yang memiliki mobil besar atau lebih dari satu kendaraan, pastikan desain rumah minimalis 6×9 tampak depan menyisakan ruang garasi yang memadai. Ketinggian garasi pun perlu diperhatikan agar mobil Anda masuk dengan leluasa. Jangan lupa tambahkan ventilasi dan jendela pada garasi agar ruangan tidak pengap dan kelembapan udara tetap terjaga.
Rumah Minimalis 6×9 Terbaru dengan Teknologi Smart Home
Seiring berkembangnya teknologi, Anda dapat menerapkan sistem smart home pada rumah minimalis 6×9 terbaru. Misalnya, gunakan lampu dan pendingin ruangan yang dapat dikontrol lewat smartphone.
Pasang sensor pintu atau CCTV pada garasi demi meningkatkan keamanan. Integrasi teknologi ini membuat rumah mungil Anda terasa lebih modern dan menyenangkan untuk dihuni.
Simak Juga : Desain rumah minimalis modern 2 lantai beserta denahnya
Memaksimalkan Interior dalam Denah Rumah 6×9 dengan Garasi

Setelah membahas eksterior, kini saatnya menata bagian dalam rumah agar tetap nyaman dan fungsional meski berukuran terbatas. Beberapa tips yang dapat Anda terapkan:
-
Gunakan Furnitur Multifungsi
Di ruang tamu atau ruang keluarga, pilih sofa bed atau kursi yang memiliki laci penyimpanan di bagian bawah. Dengan demikian, Anda tidak perlu menambah perabot lain untuk menyimpan barang. -
Pilih Warna dan Material yang Mencerahkan
Cat dinding warna cerah seperti putih, krem, atau pastel membuat rumah terlihat lebih luas. Gunakan pula material lantai mengilap (keramik glossy atau granit) yang dapat memantulkan cahaya dengan baik. -
Perhatikan Tata Letak Dapur
Untuk rumah 6×9, area dapur biasanya tidak terlalu luas. Buatlah lemari dapur yang menjulang ke atas untuk memaksimalkan ruang penyimpanan. Pastikan sirkulasi udara dan pencahayaan cukup agar kegiatan memasak tidak terasa sumpek. -
Ciptakan Open Plan
Menghilangkan sekat antara ruang tamu, ruang keluarga, dan ruang makan dapat menciptakan ilusi ruangan yang lebih besar. Gunakan pembatas visual seperti karpet atau perbedaan warna lantai untuk memisahkan fungsi setiap area. -
Manfaatkan Ruang Vertikal
Jika Anda memiliki plafon cukup tinggi, Anda bisa menambahkan mezzanine kecil untuk area kerja atau perpustakaan. Trik ini juga bisa membantu menambah jumlah ruangan tanpa memperluas tapak bangunan.
Dengan tips-tips di atas, denah rumah 6×9 dengan garasi yang Anda miliki akan semakin nyaman dihuni. Ruang terbatas bukan lagi kendala asalkan Anda tahu cara menatanya dengan tepat.
Simak Juga : Rumah type 70 minimalis modern
Tips Membangun Denah Rumah 6×9 dengan Garasi agar Lebih Nyaman

Membangun denah rumah 6×9 dengan garasi yang nyaman bukan hanya soal tata letak ruangan, tetapi juga perencanaan dan eksekusi yang tepat. Berikut beberapa tips tambahan:
-
Konsultasi dengan Arsitek atau Desainer Interior
Meskipun Anda memiliki sketsa sendiri, tidak ada salahnya berdiskusi dengan profesional. Mereka dapat memberi saran terkait konstruksi, penempatan struktur, dan penggunaan material yang sesuai. -
Pilih Material yang Tahan Lama
Demi menghemat biaya jangka panjang, pilihlah material berkualitas untuk fondasi, atap, hingga finishing dinding. Bahan berkualitas memang lebih mahal, tetapi lebih awet dan tidak mudah rusak. -
Perhatikan Sistem Drainase
Karena lahan terbatas, pastikan sistem pembuangan air hujan dan limbah sudah direncanakan dengan baik agar tidak menyebabkan genangan atau banjir lokal. -
Gunakan Area Penyimpanan Vertikal
Pasang rak dinding atau lemari gantung di area garasi agar peralatan bengkel, perkakas, dan suku cadang kendaraan tertata rapi. Ini juga memudahkan Anda saat mencari barang yang diperlukan. -
Optimalkan Ruang Bawah Tangga
Jika Anda membangun dua lantai, ruang di bawah tangga bisa dijadikan lemari penyimpanan, rak sepatu, atau bahkan kamar mandi tamu. Manfaatkan setiap jengkal ruangan untuk meminimalkan area yang terbuang. -
Pertimbangkan Cahaya Alami
Rumah yang terlalu gelap akan terasa pengap dan lembap. Gunakan skylight atau jendela kaca besar di beberapa titik strategis. Ini akan membuat rumah Anda hemat energi karena tidak perlu menyalakan lampu di siang hari. -
Sesuaikan Desain dengan Anggaran
Terakhir, tentukan skala prioritas dalam penggunaan budget. Jika dana Anda terbatas, fokuskan terlebih dahulu pada struktur utama dan garasi. Penambahan dekorasi atau furnitur bisa dilakukan bertahap.
Simak Juga : Denah rumah 6×12 memanjang
Langkah-Langkah Praktis Menyusun Denah Rumah 6×9 dengan Garasi

Berikut adalah panduan umum yang bisa Anda ikuti saat ingin menyusun denah rumah 6×9 dengan garasi:
-
Ukur Lahan Secara Detail
Pastikan ukuran 6×9 meter yang Anda miliki sesuai dengan dokumen resmi. Perhatikan juga bentuk lahan, apakah berbentuk persegi panjang sempurna atau memiliki sudut-sudut tertentu. -
Tentukan Jumlah Lantai
Sesuaikan dengan kebutuhan ruang dan anggaran. Jika membutuhkan kamar lebih banyak, pertimbangkan untuk membangun dua lantai. -
Susun Daftar Kebutuhan Ruang
Berapa jumlah kamar tidur? Apakah Anda memerlukan ruang kerja, ruang tamu terpisah, atau area bermain anak? Tuliskan semua kebutuhan tersebut sebelum membuat sketsa. -
Buat Sketsa Awal
Gambar letak ruangan, lokasi garasi, tangga (jika 2 lantai), dan posisi pintu serta jendela. Fokuskan pada sirkulasi dan fungsi ruangan agar penghuni tidak merasa sumpek. -
Diskusikan dengan Keluarga
Libatkan anggota keluarga lain dalam proses diskusi. Mungkin mereka memiliki saran tambahan atau preferensi khusus. Dengan demikian, hasil akhir akan lebih memuaskan semua pihak. -
Konsultasi dengan Profesional
Apabila Anda memiliki dana lebih, sebaiknya menggunakan jasa arsitek atau desainer interior. Mereka dapat membantu menyempurnakan desain dan menyesuaikannya dengan peraturan bangunan yang berlaku di daerah Anda. -
Siapkan Rencana Anggaran Biaya
Hitung estimasi biaya pembangunan berdasarkan desain akhir. Jangan lupa sisihkan dana cadangan sekitar 10–20% untuk mengantisipasi biaya tak terduga. -
Pengawasan Pembangunan
Saat proses pembangunan berjalan, pastikan Anda selalu memantau agar hasilnya sesuai denah dan spesifikasi yang telah direncanakan.
Dengan mengikuti langkah-langkah di atas, Anda bisa memiliki denah rumah 6×9 dengan garasi yang sesuai harapan sekaligus menghindari kesalahan fatal selama proses pembangunan.
Simak Juga : Denah rumah 7×6 2 kamar
Membuat Denah Rumah 6×9 dengan Garasi secara Kreatif

Kesimpulannya, memiliki denah rumah 6×9 dengan garasi bukanlah hal mustahil meski lahan yang Anda miliki terbatas. Kuncinya terletak pada perencanaan yang matang, mulai dari menentukan jumlah lantai, menata tata letak ruangan, hingga memilih konsep eksterior yang selaras dengan gaya hidup Anda. Jangan lupa untuk mengoptimalkan fungsi garasi, baik sebagai tempat parkir kendaraan maupun area penyimpanan ekstra.
Dengan memanfaatkan beragam inspirasi seperti denah rumah 6×9 2 lantai, model rumah 6×9 tampak depan minimalis, hingga desain rumah 6×9 memanjang, Anda dapat menyesuaikan hunian sesuai kebutuhan dan selera. Pastikan juga Anda mempertimbangkan aspek kenyamanan jangka panjang, seperti pencahayaan alami, ventilasi, hingga kehadiran taman kecil untuk menyegarkan suasana. Semoga informasi ini membantu Anda dalam mewujudkan hunian impian yang praktis, estetis, dan nyaman bagi seluruh anggota keluarga.
Harga & Biaya Jasa Arsitek Rumah Bangunan
Ingin mewujudkan rumah impian Anda? Nikmati promo diskon 50% dari kami. Promo ini akan berakhir pada

Perusahaan jasa arsitek rumah Dinasti Arsitek Studio, Kami melayani jasa desain rumah, jasa desain arsitek rumah dan bangunan, Jasa Desain Ruko serta jasa desain gedung, hotel dan apartemen.
