Denah rumah 9×7 3 kamar – Ketika merencanakan sebuah hunian, salah satu hal terpenting yang harus diperhatikan adalah denah rumah. Ukuran 9×7 meter adalah ukuran yang ideal untuk sebuah rumah minimalis yang fungsional.
Dalam artikel ini, kita akan membahas berbagai inspirasi denah rumah 9×7, mulai dari rumah dengan 2 kamar tidur hingga rumah 2 lantai yang cocok untuk keluarga kecil hingga menengah. Temukan beragam ide desain yang dapat membantu Anda mewujudkan rumah impian dengan lahan yang terbatas namun tetap nyaman.
Inspirasi Denah Rumah 9×7 yang Fungsional

Ukuran rumah 9×7 meter dianggap ideal bagi banyak keluarga modern karena memungkinkan perancangan rumah yang kompak namun tetap memiliki fungsi yang maksimal. Desain minimalis untuk rumah dengan luas ini akan mengedepankan efisiensi ruang sekaligus menciptakan suasana yang lapang dan nyaman.
Jika Anda sedang mencari inspirasi denah rumah 9×7, di sini kami akan membagikan beberapa contoh denah dengan berbagai jumlah kamar dan desain, mulai dari rumah dengan 2 kamar hingga rumah 2 lantai.
Denah Rumah 9×7 dengan 2 Kamar Tidur

Bagi pasangan muda atau keluarga kecil, denah rumah 9×7 dengan 2 kamar bisa menjadi pilihan ideal. Dalam denah ini, biasanya terdapat ruang tamu, ruang makan, dapur, serta 2 kamar tidur yang cukup nyaman.
Desain minimalis dan fungsional sangat penting untuk memaksimalkan penggunaan setiap meter persegi di rumah ukuran 9×7 ini.
Simak Juga : Denah Rumah Type 45 Lengkap

Fitur utama denah rumah 9×7 2 kamar:
- Ruang tamu terbuka yang langsung terhubung dengan ruang makan dan dapur untuk menciptakan kesan lapang.
- Kamar tidur utama dan kamar tidur anak yang dirancang sederhana namun tetap nyaman.
- Kamar mandi yang ditempatkan di antara dua kamar untuk akses yang mudah.
- Dapur minimalis di bagian belakang rumah, dengan akses langsung ke area luar atau halaman belakang.
Dengan tata letak yang efisien, denah rumah 9×7 dengan 2 kamar ini mampu memberikan kenyamanan dan privasi bagi penghuninya.

Baca Juga : Desain kost minimalis 2 lantai
Denah Rumah 9×7 3 Kamar

Jika Anda memiliki anggota keluarga lebih banyak, denah rumah 9×7 dengan 3 kamar bisa menjadi solusi. Penambahan kamar tentu memerlukan pengaturan ruang yang lebih cermat agar rumah tetap terasa lega.
Desain minimalis tetap menjadi kunci utama, terutama dengan memanfaatkan konsep ruang terbuka di beberapa area.

Fitur utama denah rumah 9×7 3 kamar:
- Kamar tidur utama, kamar tidur anak, dan kamar tamu, semua diatur dengan cerdas agar ruangan tetap terasa luas.
- Ruang tamu yang digabungkan dengan ruang makan dan dapur minimalis, tanpa sekat, menciptakan ilusi ruang yang lebih besar.
- Sirkulasi udara dan pencahayaan yang baik dengan penempatan jendela besar di setiap kamar dan ruang tamu.
- Teras depan yang cukup luas, berfungsi sebagai area santai atau area tambahan untuk menerima tamu.
Dengan penataan yang tepat, rumah berukuran 9×7 ini tetap bisa mengakomodasi kebutuhan keluarga yang lebih besar tanpa mengorbankan kenyamanan.
Simak Juga : Tarif gambar arsitek
Model Rumah Ukuran 9×7 Minimalis

Ketika berbicara mengenai model rumah ukuran 9×7 minimalis, fokus utama adalah bagaimana memaksimalkan fungsi setiap ruangan. Rumah minimalis 9×7 umumnya memiliki desain yang sederhana namun modern.
Penggunaan elemen seperti warna terang, bentuk geometris yang sederhana, dan material yang ramah lingkungan seringkali menjadi pilihan populer.
Ciri khas model rumah ukuran 9×7 minimalis:
- Desain fasad rumah yang simpel dengan garis tegas dan warna netral seperti putih, abu-abu, atau krem.
- Penggunaan material kaca untuk jendela besar, yang tidak hanya membuat rumah terlihat modern, tetapi juga membantu pencahayaan alami masuk dengan baik.
- Ruang terbuka di bagian dalam rumah, seperti ruang tamu yang langsung terhubung ke ruang makan dan dapur.
- Teras dan taman kecil di bagian depan atau belakang rumah yang memberikan suasana asri dan segar.
Desain minimalis ini sangat cocok untuk rumah berukuran 9×7 karena tidak memerlukan dekorasi berlebihan dan tetap memperhatikan fungsionalitas setiap ruang.
Baca Juga : Rumah minimalis 6 x 6
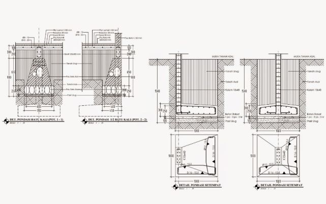
Gambar Pondasi Rumah 9×7

Dalam proses membangun rumah, gambar pondasi merupakan salah satu elemen penting yang tidak boleh diabaikan. Pondasi yang kokoh akan memastikan rumah berdiri dengan stabil dan aman.
Untuk rumah ukuran 9×7, pondasi umumnya disesuaikan dengan jenis tanah dan struktur bangunan. Berikut adalah beberapa poin penting dalam gambar pondasi rumah 9×7:
- Jenis pondasi: Pondasi lajur atau pondasi tapak seringkali digunakan pada rumah berukuran 9×7, tergantung pada kondisi tanah dan beban bangunan.
- Tata letak pondasi: Pada gambar pondasi, tata letak tiang pondasi harus memperhitungkan beban yang akan ditanggung, terutama pada titik-titik seperti dinding luar, dinding penyekat, dan bagian yang akan menahan beban lantai kedua jika rumah memiliki dua lantai.
- Kedalaman pondasi: Kedalaman pondasi biasanya berkisar antara 60 hingga 80 cm, tergantung pada kekuatan tanah. Pastikan menggunakan material yang kuat seperti batu kali dan beton untuk memastikan kekuatan pondasi.
Simak Juga : Contoh denah rumah 2 lantai
Denah Rumah 9×7 2 Lantai

Bagi Anda yang membutuhkan ruang lebih banyak, membangun denah rumah 9×7 2 lantai bisa menjadi solusi. Rumah dua lantai memungkinkan penambahan kamar tidur, ruang kerja, atau bahkan ruang hiburan tanpa perlu memperluas lahan.
Fitur utama denah rumah 9×7 2 lantai:
- Lantai 1 biasanya terdiri dari ruang tamu, ruang makan, dapur, serta satu kamar tidur tamu atau ruang kerja.
- Lantai 2 dapat diisi dengan kamar tidur utama dan kamar tidur anak, lengkap dengan ruang keluarga atau ruang santai.
- Tata letak tangga harus dirancang dengan baik agar tidak memakan terlalu banyak ruang di lantai 1.
- Desain terbuka pada lantai 1 dengan meminimalisir penggunaan sekat untuk menciptakan kesan luas.
Dengan desain yang tepat, rumah dua lantai berukuran 9×7 dapat menjadi hunian yang nyaman dan fungsional tanpa terlihat sempit.
Baca Juga : Desain rumah 8×15 3 kamar
Gambar Pondasi Rumah 9×7 3 Kamar

Jika Anda merencanakan rumah dengan 3 kamar pada lahan 9×7, gambar pondasi harus memperhitungkan beban tambahan. Rumah dengan 3 kamar, terutama jika dua di antaranya berada di lantai atas, memerlukan pondasi yang lebih kuat.
Poin penting pada gambar pondasi rumah 9×7 3 kamar:
- Distribusi beban: Pondasi harus didesain untuk menopang beban tambahan dari lantai atas dan dinding penyekat.
- Penempatan tiang: Tiang pondasi perlu ditempatkan di titik-titik strategis seperti sudut ruangan dan di bawah tangga.
- Material yang kuat: Penggunaan beton bertulang atau batu kali sebagai material pondasi akan memastikan rumah Anda tetap stabil dalam jangka panjang.
Simak Juga : Rumah minimalis 7×6
Desain Rumah Minimalis 9×7

Untuk desain rumah minimalis 9×7, kunci utamanya adalah menjaga kesederhanaan dan fungsionalitas. Rumah minimalis umumnya tidak memerlukan terlalu banyak elemen dekoratif, namun lebih fokus pada penggunaan ruang yang efektif dan estetika yang bersih.
Ciri utama desain rumah minimalis 9×7:
- Penggunaan warna netral: Warna-warna seperti putih, abu-abu, atau krem membuat ruangan terasa lebih lapang.
- Perabotan yang minimalis: Hanya gunakan perabotan yang benar-benar diperlukan, dengan desain yang simpel namun tetap fungsional.
- Pemanfaatan cahaya alami: Jendela besar dan ventilasi yang baik akan membuat rumah terlihat lebih terang dan nyaman.
Baca Juga : Rumah minimalis modern dua lantai
Model Rumah 9×7

Terakhir, model rumah 9×7 dapat bervariasi tergantung pada preferensi pribadi dan kebutuhan keluarga. Beberapa model yang populer antara lain:
- Model rumah minimalis modern: Dikenal dengan garis-garis tegas dan penggunaan material seperti beton, kaca, dan logam.
- Model rumah tropis: Mengutamakan sirkulasi udara yang baik, dengan ventilasi yang banyak dan atap yang tinggi.
Dengan beragam inspirasi denah rumah 9×7 di atas, Anda dapat memilih desain yang paling sesuai dengan kebutuhan dan selera pribadi Anda.
FAQ
Berapa ukuran lahan minimal yang ideal untuk denah ini?
Lahan minimal yang ideal adalah sekitar 90 m² hingga 100 m² (misalnya dimensi tanah 10×10 meter atau 9×12 meter). Ukuran ini memberikan sisa lahan yang cukup untuk carport di bagian depan, teras kecil, serta area jemur atau sirkulasi udara di bagian belakang agar kamar belakang tidak pengap dan tetap mendapat cahaya alami.
Apakah rumah 9×7 dengan 3 kamar akan terasa sempit?
Rumah ini akan terasa padat (compact), tetapi tidak akan terasa sempit jika penataannya benar. Kunci utamanya adalah penggunaan plafon yang tinggi (di atas 3 meter) untuk sirkulasi udara yang baik, penggunaan warna cat cerah (putih atau krem), serta penggunaan perabot multifungsi yang tidak memakan tempat (seperti lemari tanam atau meja lipat).
Berapa estimasi biaya bangun rumah tipe ini di tahun 2026?
Estimasi biaya sangat bergantung pada spesifikasi material dan lokasi, namun untuk standar rumah menengah (semi-finishing yang layak), biayanya berkisar antara Rp 3,5 juta hingga Rp 4,5 juta per meter persegi. Jadi, untuk luas 63 m², siapkan anggaran sekitar Rp 220 juta hingga Rp 280 juta. Jika menggunakan sistem borongan tenaga saja (material beli sendiri), biaya bisa ditekan menjadi sekitar Rp 150 juta – Rp 180 juta, belum termasuk furniture.
Fasilitas ruangan apa saja yang bisa masuk ke dalam denah ini?
Dengan luas 63 m², Anda bisa mendapatkan fasilitas fungsional berupa 1 teras depan, 1 ruang tamu yang menyatu dengan ruang keluarga, 1 area dapur dan makan (open space), 3 kamar tidur (1 utama, 2 standar), 1 kamar mandi, dan area cuci jemur kecil di belakang. Jangan mengharapkan adanya gudang besar atau ruang tamu terpisah (foyer) dalam ukuran ini.
Apakah satu kamar mandi cukup untuk 3 kamar tidur?
Untuk ukuran rumah 63 m², satu kamar mandi adalah solusi paling realistis untuk memaksimalkan luas kamar tidur. Menambah kamar mandi kedua akan memakan space sekitar 2-3 m² yang seharusnya bisa digunakan untuk memperluas ruang gerak di dapur atau kamar anak. Strategi terbaik adalah menempatkan wastafel di luar kamar mandi agar area toilet tetap bisa dipakai saat ada yang sekadar mencuci tangan atau sikat gigi.
Harga & Biaya Jasa Arsitek Rumah Bangunan
Ingin mewujudkan rumah impian Anda? Nikmati promo diskon 50% dari kami. Promo ini akan berakhir pada

Perusahaan jasa arsitek rumah Dinasti Arsitek Studio, Kami melayani jasa desain rumah, jasa desain arsitek rumah dan bangunan, Jasa Desain Ruko serta jasa desain gedung, hotel dan apartemen.