Rumah minimalis 7×8 – Halo teman-teman yang sedang mencari inspirasi! Membangun rumah ukuran 7×8 meter bisa menjadi proyek yang menantang, namun sangat menarik. Rumah minimalis dengan luas tersebut perlu direncanakan dengan cermat agar tetap nyaman dan stylish.
Desain yang efisien serta pemilihan material yang tepat merupakan kunci untuk menghadirkan ruang yang multifungsi. Di blog ini, kita akan membahas berbagai ide serta tips jitu untuk mendesain rumah minimalis 7×8, dari denah rumah hingga elemen dekoratif yang menambah nilai estetika.
Bersiaplah untuk mendapatkan inspirasi yang akan membuat proyek pembangunan rumah kecil Anda menjadi kenyataan!
Konsep dan Filosofi Rumah Minimalis 7×8

Dalam membangun rumah berukuran 7×8 meter, penting untuk memahami konsep dan filosofi desain yang ingin diaplikasikan. Rumah minimalis tidak hanya berarti kecil dan sederhana, tetapi juga menekankan pada pemanfaatan ruang yang efisien dan gaya hidup yang memprioritaskan kenyamanan dan fungsionalitas.
Pengertian Rumah Minimalis 7×8
Rumah minimalis 7×8 mengacu pada rumah dengan ukuran 7 meter kali 8 meter, yang biasanya memiliki luas total sekitar 56 meter persegi. Luas ini tergolong cukup terbatas, sehingga perencanaan ruang menjadi hal yang sangat penting.
Jenis rumah ini cocok untuk keluarga kecil atau pasangan yang baru menikah yang menginginkan hunian praktis dan nyaman. Kelebihan ukuran 7×8 adalah fleksibilitas dalam pengaturan ruang dan potensi untuk menjadi tempat tinggal yang efisien dan estetis.
Simak Juga : Industrial modern
Filosofi Desain Minimalis

Filosofi desain minimalis berpusat pada konsep “less is more”. Desain ini menekankan penggunaan elemen-elemen yang sederhana namun memiliki nilai estetis dan fungsional yang tinggi. Dalam mendesain rumah minimalis, penting untuk memprioritaskan elemen-elemen berikut:
- Kesederhanaan: Mengurangi elemen dekoratif yang berlebihan dan lebih fokus pada bentuk dan fungsi dasar.
- Fungsionalitas: Setiap ruang dan elemen dalam rumah harus memiliki fungsi yang jelas, mendukung gaya hidup yang efisien.
- Ruang Terbuka: Memaksimalkan penggunaan ruang terbuka dan menghindari pembatasan yang tidak perlu.
- Material Berkualitas: Memilih material yang tahan lama dan mudah perawatannya dengan tampilan yang elegan.
- Pencahayaan Alami: Memastikan rumah mendapatkan pencahayaan alami yang cukup untuk menciptakan suasana yang hangat dan menyenangkan.
Simak Juga : Rumah minimalis modern 8×15
Strategi Denah Rumah 7×8 yang Efisien dan Fungsional
Menata ruang dalam rumah berukuran 7×8 meter memerlukan perencanaan yang cermat agar setiap sudut dapat dimanfaatkan secara maksimal. Berikut ini beberapa strategi untuk denah rumah 7×8 yang bisa Anda pertimbangkan.
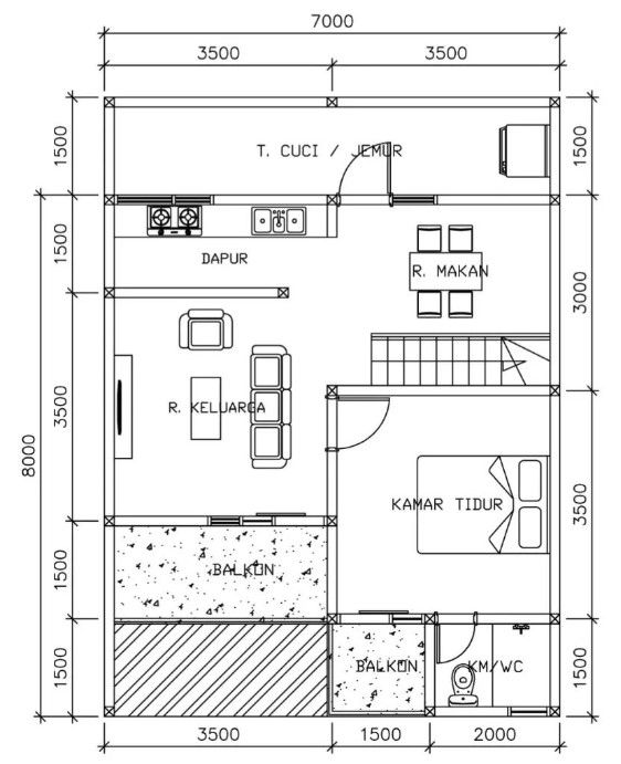
Denah Rumah 7×8 1 Lantai

Rumah satu lantai dengan ukuran 7×8 merupakan pilihan yang praktis jika Anda menginginkan hunian yang mudah diakses dan dirawat. Beberapa saran denah antara lain:
- Ruang Multifungsi: Integrasikan ruang tamu, ruang makan, dan dapur tanpa sekat untuk memberikan kesan luas dan lega.
- Kamar Tidur yang Kompak: Buatlah kamar tidur sekaligus ruang kerja atau belajar, terutama jika Anda bekerja dari rumah.
- Penyimpanan Efisien: Gunakan rak dinding dan solusi penyimpanan tersembunyi untuk mengurangi kekacauan dan memaksimalkan ruang penyimpanan.
Simak Juga : Denah rumah 9×7 3 kamar tidur
Denah Rumah Ukuran 7×8 Kamar 2

Jika Anda memerlukan dua kamar tidur, pengaturan denah harus disesuaikan untuk menjaga kenyamanan penghuni. Pertimbangkan beberapa hal berikut:
- Privasi dan Kebersamaan: Pastikan tata letak kamar tidur memberikan privasi tetapi tetap mudah diakses dari ruang utama.
- Ruang Keluarga: Posisikan ruang keluarga di antara kamar tidur agar bisa menjadi pusat aktivitas internal.
- Optimasi Halaman Depan/Belakang: Sisihkan ruang untuk halaman yang bisa diakses dari salah satu kamar untuk menambah nuansa alami.
Simak Juga : Denah rumah minimalis 4 kamar tidur
Desain Denah Rumah 7×8 3 Kamar Tidur

Membangun rumah 7×8 dengan tiga kamar tidur mungkin tampak menantang, tetapi dengan strategi yang tepat, Anda bisa mencapainya:
- Pembagian Ruang: Desain kamar dengan ukuran yang proporsional, dan pilih furnitur yang multifungsi untuk menghemat ruang.
- Loft atau Mezzanine: Jika tinggi ruangan memungkinkan, pertimbangkan menambah mezzanine untuk ekstra ruang tidur atau penyimpanan.
- Ruang Serba Guna: Manfaatkan ruang antara sebagai ruang serba guna yang bisa berfungsi sebagai tempat bermain atau sudut tenang.
Pentingnya Denah Rumah Minimalis 7×8
Denah rumah yang efisien tidak hanya membantu dalam optimalisasi ruang, tetapi juga memainkan peran penting dalam kehidupan sehari-hari. Berikut adalah alasannya:
- Efisiensi Ruang: Setiap meter persegi dimaksimalkan agar sesuai dengan kebutuhan hidup sehari-hari tanpa menimbulkan rasa sempit.
- Kenyamanan: Pengaturan ruang yang tepat memastikan bahwa setiap penghuni merasakan kenyamanan dan kebebasan bergerak.
- Perencanaan Ekonomis: Denah yang baik juga mempertimbangkan anggaran yang lebih hemat dengan mengurangi biaya tambahan akibat pengaturan ulang.
Simak Juga : Denah rumah 6×12 memanjang
Inspirasi Taman dan Area Luar Ruangan

Selain penataan ruang dalam, area luar rumah juga tidak kalah pentingnya. Banyak manfaat yang bisa diperoleh dengan menambahkan elemen hijau di rumah minimalis 7×8 Anda.
- Taman Vertikal: Jika lahan terbatas, buatlah taman vertikal di dinding luar untuk memberikan sentuhan hijau.
- Dek Kayu atau Batu: Dengan ukuran yang terbatas, area duduk kecil atau dek batu bisa menjadi tempat yang nyaman untuk bersantai.
- Tanaman Pot dan Teras: Tempatkan beberapa tanaman pot di sekitar teras untuk menambah kesan alami dan menyatu dengan lingkungan sekitar.
Dengan strategi dan inspirasi desain rumah minimalis 7×8 yang tepat, Anda dapat menciptakan hunian yang tidak hanya estetik tetapi juga mendukung kebutuhan serta gaya hidup modern. Selamat mencoba mencari dan mewujudkan desain rumah impian Anda!
Simak Juga : Rumah minimalis modern ukuran 7×6
Inspirasi Desain Rumah Minimalis 7×8

Desain rumah minimalis menjadi pilihan populer bagi banyak orang yang ingin memanfaatkan ruang secara efisien dengan tetap memperhatikan estetika. Jika kamu memiliki lahan terbatas, seperti ukuran 7×8 meter, jangan khawatir!
Berikut beberapa inspirasi desain rumah minimalis yang dapat kamu terapkan dan sesuaikan dengan kebutuhanmu.
Elemen Desain Modern
Desain modern pada rumah minimalis tidak hanya mengutamakan keindahan, tetapi juga fungsi dari setiap elemen. Beberapa elemen desain modern yang bisa kamu pertimbangkan antara lain:
- Bentuk Geometris Sederhana: Memilih bentuk-bentuk yang simpel dan tidak ribet merupakan ciri khas dari desain modern. Misalnya, bentuk kotak atau persegi panjang yang memudahkan dalam pembagian ruang.
- Konsep Ruang Terbuka: Mengadopsi konsep open space, di mana kamu bisa menggabungkan ruang tamu, ruang makan, dan dapur dalam satu ruang yang luas tanpa banyak sekat.
- Material Kontemporer: Penggunaan material seperti kaca, logam, dan beton ekspos dapat menambah kesan modern pada rumahmu.
- Warna Netral: Palet warna netral seperti putih, abu-abu, dan krem bisa menjadi dasar yang baik untuk memberikan kesan bersih dan luas.
Simak Juga : Denah rumah 2 lantai lengkap
Contoh Konsep dan Gaya

Berikut adalah beberapa contoh konsep dan gaya untuk rumah minimalis 7×8 meter yang bisa menginspirasi:
- Scandinavian: Mengedepankan penggunaan warna-warna lembut dan material kayu alami, gaya Scandinavian menghadirkan nuansa hangat dan nyaman. Tambahkan beberapa tekstil seperti karpet bulu atau bantal untuk memberikan sentuhan yang lebih cozy.
- Industrial: Jika kamu suka tampilan yang lebih edgy, gaya industrial bisa jadi pilihan. Ekspos bata atau pipa, dan pilih perabot dengan finishing metalik untuk menciptakan suasana urban yang khas.
- Japandi: Kombinasi gaya Jepang dan Scandinavian ini terkenal dengan estetika keseimbangan yang mengutamakan minimalisme dan fungsionalitas. Menggunakan furnitur rendah dan elemen dekorasi yang sederhana namun elegan.
Simak Juga : Rumah mezzanine minimalis
Tips Cerdas Membangun Hunian Nyaman dan Stylish
Membangun rumah di lahan terbatas tentu memerlukan strategi tersendiri. Berikut beberapa tips cerdas yang bisa membantumu:
Pemilihan Material dan Finishing
Memilih material dan finishing yang tepat dapat memberikan daya tahan lebih lama serta menambah nilai estetika rumah. Beberapa hal yang bisa dipertimbangkan adalah:
- Material yang Tahan Lama: Gunakan material berkualitas yang tahan lama, seperti keramik untuk lantai dan plafon gypsum. Ini tidak hanya menghemat biaya perawatan, tetapi juga menjaga tampilan rumah tetap segar.
- Finishing yang Memukau: Pertimbangkan penggunaan cat eco-friendly yang aman dan ramah lingkungan. Pilih juga finishing kayu yang ringan dan tahan terhadap cuaca.
Bahan Bangunan dengan Harga Terjangkau

Memilih bahan bangunan yang tepat dengan harga terjangkau tanpa mengesampingkan kualitas merupakan kunci untuk mendapatkan hunian yang nyaman. Beberapa bahan alternatif yang dapat dipertimbangkan antara lain:
- Bambu: Selain ramah lingkungan, bambu juga memiliki kekuatan yang baik dan estetikannya tak kalah menawan.
- Bata Ringan (Hebel): Lebih murah dan mudah dipasang, serta memiliki kemampuan isolasi suara dan panas yang baik.
- Panel Surya: Investasi panel surya dapat menghemat biaya listrik dalam jangka panjang, terutama jika rumah didesain untuk optimal dalam memanfaatkan sinar matahari.
Simak Juga : Desain kost 2 lantai minimalis modern
Pengaturan Ruang Publik dan Privat
Pembagian antara ruang publik dan privat dalam rumah minimalis sangat penting untuk kenyamanan seluruh penghuni. Tips berikut bisa membantumu menata ruang dengan bijak:
- Ruang Tamu dan Dapur: Kombinasikan ruang tamu dengan ruang makan untuk menciptakan suasana yang lebih luas. Meja makan yang bisa dilipat atau multi-fungsi bisa menjadi pilihan untuk menghemat ruang.
- Kamar Tidur Benteng: Pastikan kamar tidur diletakkan di bagian belakang atau area yang jauh dari kebisingan jalan untuk menjamin kualitas istirahat yang optimal.
- Lorong Sebagai Pembatas: Gunakan lorong atau rak buku sebagai pemisah antara ruang publik dan ruang privat untuk menjaga privasi tanpa harus menambah dinding.
Optimalisasi Ruang dan Pencahayaan

Terakhir, optimalisasi ruang dan pencahayaan dapat meningkatkan kenyamanan serta efisiensi ruangan. Berikut beberapa tips yang dapat diterapkan:
- Pencahayaan Alami: Jika memungkinkan, buatlah banyak jendela besar untuk memaksimalkan pencahayaan alami. Ini akan tidak hanya menghemat energi, tetapi juga memberikan kesan lebih terbuka dan segar.
- Furnitur Multi-Fungsi: Gunakan furnitur multi-fungsi yang dapat digunakan untuk berbagai keperluan, seperti sofa bed atau meja makan yang bisa berubah fungsi.
- Cermin untuk Kesan Luas: Memanfaatkan cermin besar di dinding dapat menciptakan ilusi ruang yang lebih luas, sehingga rumah terasa lebih lega meskipun dengan ukuran terbatas.
Dengan berbagai inspirasi desain dan tips di atas, kamu bisa mewujudkan rumah minimalis 7×8 meter yang efisien dan tetap stylish. Jangan ragu untuk mengeksplorasi konsep dan gaya yang paling sesuai dengan karakter dan kebutuhanmu. Selamat merancang rumah impianmu!
Simak Juga : Rumah lebar 5 m
Desain Interior yang Efisien

Memiliki ruang yang terbatas tidak berarti Anda harus mengorbankan gaya dan kenyamanan. Bahkan, dengan desain interior yang efisien, rumah minimalis 7×8 bisa menjadi tempat tinggal yang nyaman dan modern.
Yuk, kita telusuri beberapa elemen penting yang bisa membantu Anda mencapai desain yang efisien!
Pemilihan Warna dan Pencahayaan

Salah satu cara termudah untuk membuat ruang kecil terasa lebih luas adalah dengan memilih palet warna yang tepat. Warna-warna terang seperti putih, krem, atau abu muda bisa memantulkan lebih banyak cahaya dan membuat ruangan terasa lebih terbuka.
Sebaliknya, gunakan warna-warna cerah dan gelap hanya sebagai aksen untuk memberikan sedikit kontras dan karakter.
Selain itu, pencahayaan memainkan peran penting dalam menciptakan suasana yang nyaman. Manfaatkan cahaya alami sebanyak mungkin dengan memasang jendela besar atau skylight.
Untuk pencahayaan buatan, gunakan lampu dengan tone hangat di ruang keluarga untuk menciptakan suasana yang hangat dan welcome. Lampu sorot atau lampu meja bisa jadi pilihan tepat untuk menambah aspek dekoratif sekaligus fungsi.
Penataan Ruang yang Fungsional

Efisiensi dalam ruang kecil bergantung pada penataan yang baik. Mulailah dengan menentukan fungsi setiap ruangan secara jelas sehingga Anda bisa menghindari tumpang tindih fungsi.
Buatlah denah rumah 7×8 yang memungkinkan aliran gerakan mudah dari satu ruangan ke ruangan lain. Misalnya, posisi dapur dekat dengan ruang makan atau ruang tamu memudahkan aktivitas sehari-hari.
Pemisahan ruang bisa dilakukan dengan cara kreatif, misalnya menggunakan rak buku, partisi ringan, atau meja lipat. Hindari tembok permanen yang dapat membuat rumah terasa lebih sempit.
Sebaliknya, pilihlah partisi yang dapat dipindahkan atau dilipat sehingga ruangan tetap fleksibel untuk beragam keperluan.
Penggunaan Furnitur Multifungsi

Membeli furnitur untuk rumah minimalis 7×8 memerlukan pertimbangan ekstra, agar setiap item yang Anda pilih dapat memberikan manfaat maksimal. Furnitur multifungsi jadi pilihan bijak untuk memaksimalkan ruang yang tersedia.
- Sofa bed: Berguna di ruang tamu yang juga berfungsi sebagai kamar tamu.
- Meja lipat: Bekerja baik di ruang makan yang kadang membutuhkan tambahan ruang untuk bergerak.
- Tempat tidur dengan penyimpanan di bawahnya: Bagus sekali untuk menyimpan barang tanpa kebutuhan tambahan furnitur penyimpanan.
Tak hanya menghemat ruang, furnitur multifungsi seperti ini memberikan kepraktisan yang mempermudah kegiatan sehari-hari, memungkinkan Anda untuk menikmati rumah tanpa merasa sumpek.
Simak Juga : Contoh rumah minimalis sederhana di kampung
Wujudkan Desain Rumah Minimalis 7×8 Anda
Sudah punya desain impian untuk rumah minimalis 7×8 Anda? Tentu, mendesain rumah dengan dimensi terbatas memerlukan perencanaan dan keahlian khusus agar ruang dapat dimanfaatkan sepenuhnya dengan tetap memperhatikan estetika.
Inilah saatnya mempercayakan perencanaan desain kepada profesional yang dapat mewujudkan rumah idaman Anda.
Jasa Desain Rumah Dinasti Arsitek

Dinasti Arsitek adalah salah satu penyedia solusi desain rumah terpercaya yang terkenal akan hasil kerja dan inovasi dalam desain rumah minimalis. Dengan pengalaman bertahun-tahun dan portofolio yang beragam, Dinasti Arsitek mampu memberikan solusi desain yang cocok untuk kebutuhan pribadi dan ukuran rumah Anda.
Keunggulan Dinasti Arsitek antara lain adalah kemampuan untuk memahami kebutuhan klien, dan menggabungkannya dengan tren desain terkini. Sehingga rumah 7×8 Anda bisa tampil modern, efisien, dan tentu saja nyaman.
Layanan Jasa Desain Rumah

Saat Anda memutuskan untuk bekerja sama dengan penyedia jasa desain rumah, banyak keuntungan yang bisa Anda dapatkan dibandingkan merancang sendiri atau membeli desain jadi. Apa saja kelebihan menggunakan layanan jasa desain rumah?
- Konsultasi Pribadi: Pembahasan detail mengenai kebutuhan Anda, preferensi desain, dan budget yang tersedia.
- Desain Kustom: Solusi desain yang diadaptasi secara khusus untuk ruang dan gaya hidup Anda.
- Estimasi Anggaran: Memahami perkiraan biaya konstruksi sehingga Anda bisa lebih matang dalam merencanakan keuangan.
- Proses Efisien: Hemat waktu dan tenaga dengan proses desain yang terbukti dan terpercaya.
Layanan yang komprehensif ini memastikan bahwa setiap tahapan di dalam proyek pembangunan rumah minimalis 7×8 Anda diurus dengan baik, memungkinkan Anda menikmati setiap momen hingga rumah impian menjadi nyata.
Hubungi Kami
Tertarik dengan layanan kami? Jangan ragu untuk menghubungi tim kami. Kami siap membantu Anda mewujudkan rumah minimalis 7×8 yang sesuai dengan harapan. Dengan memahami visi dan rencana Anda, kami yakin bisa menciptakan desain yang Anda idamkan.
Kami menanti kesempatan untuk bekerja sama dan mengenal Anda lebih jauh. Semoga impian memiliki rumah minimalis yang efisien dan stylish segera terwujud!
Kesimpulan
Desain rumah minimalis dengan ukuran 7×8 meter memang menantang, namun bukan berarti tidak mungkin untuk menciptakan rumah yang nyaman dan modern. Beberapa poin penting dalam mendesain rumah ini antara lain:
- Pemanfaatan ruang secara maksimal dengan penggunaan furnitur multifungsi.
- Memilih warna cat yang cerah untuk memberikan kesan luas.
- Menambahkan elemen tanaman untuk kesegaran dan kenyamanan tambahan.
Dengan perencanaan yang tepat, rumah minimalis 7×8 meter bisa menjadi tempat tinggal yang efisien dan stylish, cocok untuk keluarga kecil atau pasangan muda yang mencari hunian praktis.
FAQ

Apa itu rumah minimalis 7×8?
Rumah minimalis 7×8 adalah jenis rumah yang memiliki luas 56 meter persegi, dengan ukuran panjang 7 meter dan lebar 8 meter. Disukai banyak orang karena efisiensi penggunaan ruang dan desainnya yang modern, rumah ini sangat ideal untuk mereka yang ingin tinggal di kota tanpa mengorbankan kenyamanan.
Apa keuntungan membangun rumah minimalis ukuran ini?
Membangun rumah minimalis 7×8 memiliki beberapa keuntungan. Pertama, biaya pembangunan umumnya lebih terjangkau. Kedua, lebih mudah untuk dibersihkan dan dirawat. Ketiga, dengan desain yang cerdas, Anda tetap bisa mendapatkan rumah yang fungsional dan nyaman.
Bagaimana cara memaksimalkan ruang dalam rumah ukuran 7×8?
Untuk memaksimalkan ruang dalam rumah ukuran 7×8, Anda dapat menggunakan desain lantai terbuka dimana satu ruang dapat difungsikan untuk beberapa kegiatan. Pilihlah perabotan multifungsi, seperti sofa bed atau tempat tidur dengan penyimpanan di bawahnya. Manfaatkan juga dinding vertikal untuk rak penyimpan.
Berapa jumlah kamar tidur yang dapat dibuat dalam rumah ini?
Dengan penataan denah yang efektif, rumah minimalis 7×8 bisa menampung hingga tiga kamar tidur. Denah ini cocok untuk keluarga kecil dan tetap menyediakan ruang pribadi untuk setiap anggotanya.
Apakah gaya modern dapat diterapkan pada rumah 7×8?
Tentu saja! Gaya modern sangat cocok diterapkan pada rumah minimalis hingga ukuran 7×8. Penggunaan elemen desain seperti warna-warna netral, garis-garis bersih, dan aplikasi kaca dapat menambah kesan luas dan modern pada rumah Anda.
Berapa biaya yang diperlukan untuk membangun rumah minimalis 7×8?
Biaya membangun rumah minimalis 7×8 dapat bervariasi tergantung pada lokasi, harga bahan, dan pilihan penyelesaian interior. Secara umum, pastikan Anda memiliki anggaran sekitar 200-500 juta rupiah, mencakup pembelian tanah hingga finishing.
Material apa yang sebaiknya digunakan untuk rumah minimalis?
Material yang sering digunakan untuk rumah minimalis adalah beton ekspos, kayu, dan kaca. Material ini tidak hanya estetis tetapi juga tahan lama dan mudah didapatkan. Mereka memberikan tampilan modern dan sleek yang sangat diinginkan banyak orang.
Apakah rumah minimalis 7×8 ramah lingkungan?
Ya, rumah minimalis 7×8 bisa dirancang agar ramah lingkungan. Dengan memanfaatkan pencahayaan alami, ventilasi yang baik, dan penggunaan material ramah lingkungan, Anda dapat mengurangi jejak karbon dan memelihara lingkungan sekitar.
Apa tantangan terbesar dalam membangun rumah 7×8?
Tantangan utamanya adalah memaksimalkan ruang yang terbatas agar tetap nyaman dan fungsional. Penyusunan denah yang tepat dan pemilihan interior yang cermat dapat mengatasi tantangan tersebut.
Bagaimana menjaga rumah minimalis tetap rapi?
Pastikan untuk selalu merapikan setelah selesai memakai sesuatu, dan gunakan tempat penyimpanan yang efisien. Pemilihan perabot yang tepat juga penting. Misalnya, pilih meja dengan rak atau tempat tidur dengan laci untuk menyimpan barang-barang yang tidak sering digunakan.
Harga & Biaya Jasa Arsitek Rumah Bangunan
Ingin mewujudkan rumah impian Anda? Nikmati promo diskon 50% dari kami. Promo ini akan berakhir pada

Perusahaan jasa arsitek rumah Dinasti Arsitek Studio, Kami melayani jasa desain rumah, jasa desain arsitek rumah dan bangunan, Jasa Desain Ruko serta jasa desain gedung, hotel dan apartemen.
